Działka usługowa Święta Katarzyna gm. Siechnice
Święta Katarzyna gm. Siechnice Pokaż na mapie ›
Ogłoszenie archiwalne Wygasło: Czwartek, 07 Sierpień, 2025 01:10
2 400 000 zł
398 zł/m2
Szczegóły ogłoszenia
- Kategoria: Działki i grunty / Sprzedaż
- Pow. działki:6026 m2
- Rodzaj działki:Usługowa
- Sprzedaż:Pośrednik
- Cena: 2 400 000 zł / 398 zł/m2
Opis oferty
Wyłączny Opiekun oferty:Jakub Wantrych
Licencja PFRN 30928
tel. 602 - pokaż numer telefonu -
Działka usługowa o łącznej powierzchni 6026 m2 zlokalizowana w Świętej Katarzynie (Gmina Siechnice) przy ul. Generała Dąbrowskiego.
Najważniejsze informacje:
- Media w działce (woda, gaz, prąd)
- Moc przyłącza elektrycznego 100kw
- Działka niezabudowana
- Jedynie kilka minut od wschodniej obwodnicy Wrocławia
- 12 minut od Autostrady A4 (Węzeł Krajków) oraz 10 minut od Wrocławia
- Uregulowany stan prawny
- Pozwolenie na budowę (projekt do wglądu)
Przeznaczenie:
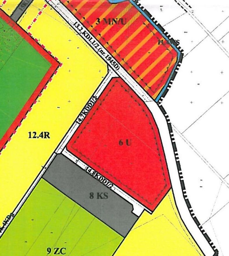
Zgodnie z obowiązującym planem zagospodarowania przestrzennego działka znajduje się na terenach zabudowy usługowej.
6 U - teren zabudowy usługowej, z urządzeniami towarzyszącymi.
1. Przeznaczenie podstawowe: zabudowa usługowa.
2. Przeznaczenie dopuszczalne:
1) urządzenia i sieci infrastruktury technicznej;
2) zieleń urządzona.
1)ustala się obowiązek stosowania dachów stromych o symetrycznym układzie połaci
dachowych (dopuszcza się dachy wielospadowe, mansardowe); o spadkach 30-50 (nie
dotyczy lukarn, wykuszów itp.);
2) pokrycie dachów- dachówką lub materiałem dachówkopodobnym;
3) ustala się zakaz stosowania dachów o mijających się połaciach na wysokości kalenicy
oraz czterospadowych dachów namiotowych" tzn. takich, w których krawędzie połaci
dachowych zbiegają się w jednym punkcie;
4) wysokość budynków nie może przekraczać 12 m.
Ochrona dziedzictwa kulturowego i zabytków oraz dóbr kultury współczesnej:
W zakresie ochrony archeologicznej obowiązują ustalenia 6 ust. 4.
5. Parametry i wskaźniki ksztaltowania zabudowy oraz zagospodarowania terenu:
1)ustala się nieprzekraczalną linię zabudowy w odległości 8 m od linii rozgraniczającej
drogi dojazdowej KDD, zgodnie z oznaczeniami na rysunku planu;
2) wskaźnik powierzchni zabudowy nie więcej niż 0,5;
3) powierzchnia terenów czynnych biologicznie nie mniej niż 20% powierzchni działki;
Lokalizacja nieruchomości:
Nieruchomość znajduje się w uniwersalnej lokalizacja w spokojnym miejscu z łatwą i szybką możliwością dojazdu do dużych węzłów komunikacyjnych. Bliskość miasta to także spory atut (10 minut samochodem do granicy Wrocławia) działka dzięki temu oferuje spory potencjał inwestycyjny w prężnie rozwijającej się aglomeracyjnej gminie.
Zapraszam do kontaktu po więcej szczegółowych informacji !
Jakub Wantrych
tel. 602 - pokaż numer telefonu -
Numer oferty: 38606
Sprawdź zainteresowanie tym ogłoszeniem
Wyświetlenia
Data dodania
Ostatnio widziany
Obserwujących
Wysłane zapytania
Odsłony telefonu
To ogłoszenie jest archiwalne i może być nieaktualne.
- Wypromuj ogłoszenie
- Zgłoś naruszenie
- Edytuj/usuń ogłoszenie
- Udostępnij ogłoszenie
- Dodaj na Facebook










